Description
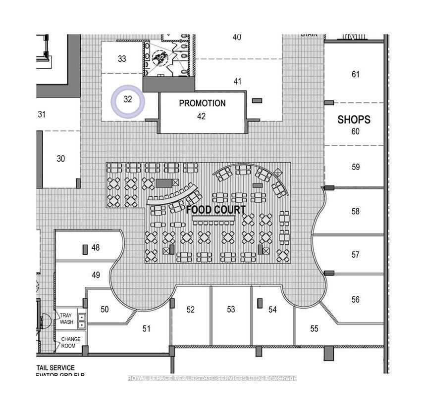
Great Opportunity To Own Investment Commercial Condo Unit At A Jewel Of The Aura Shopping MallIn The Yonge-College Vicinity. Home Of Major High Rise Condos And Office Towers. A Two-GlassWall-Corner Unit In The Food Court With Maximum Visibilty. Steps Away From College SubwayStation. Huge Number Of Residences Of High-Rise Condo Buildings Within Bay & College. AnchorTenancts: World Famous "IKEA", Marshalls, Home Sense In The Building Tenanted (leased) until 8/31/2026 without option to renew, buyer can use for its own use after then.
Features
-
Category: Retail Store Related

-
Total Area: 457 sqft

- Retail Area: 457 sqft

- Parking Types: Underground

Details
- Zoning: Commercial

- Tax: $ 3,902

- Opening Days: Varies

- Alcohol Allowed: N

- Features: Public Transit, Subways

- C12306838

- Listing contracted with: ROYAL LEPAGE REAL ESTATE SERVICES LTD.















