Description
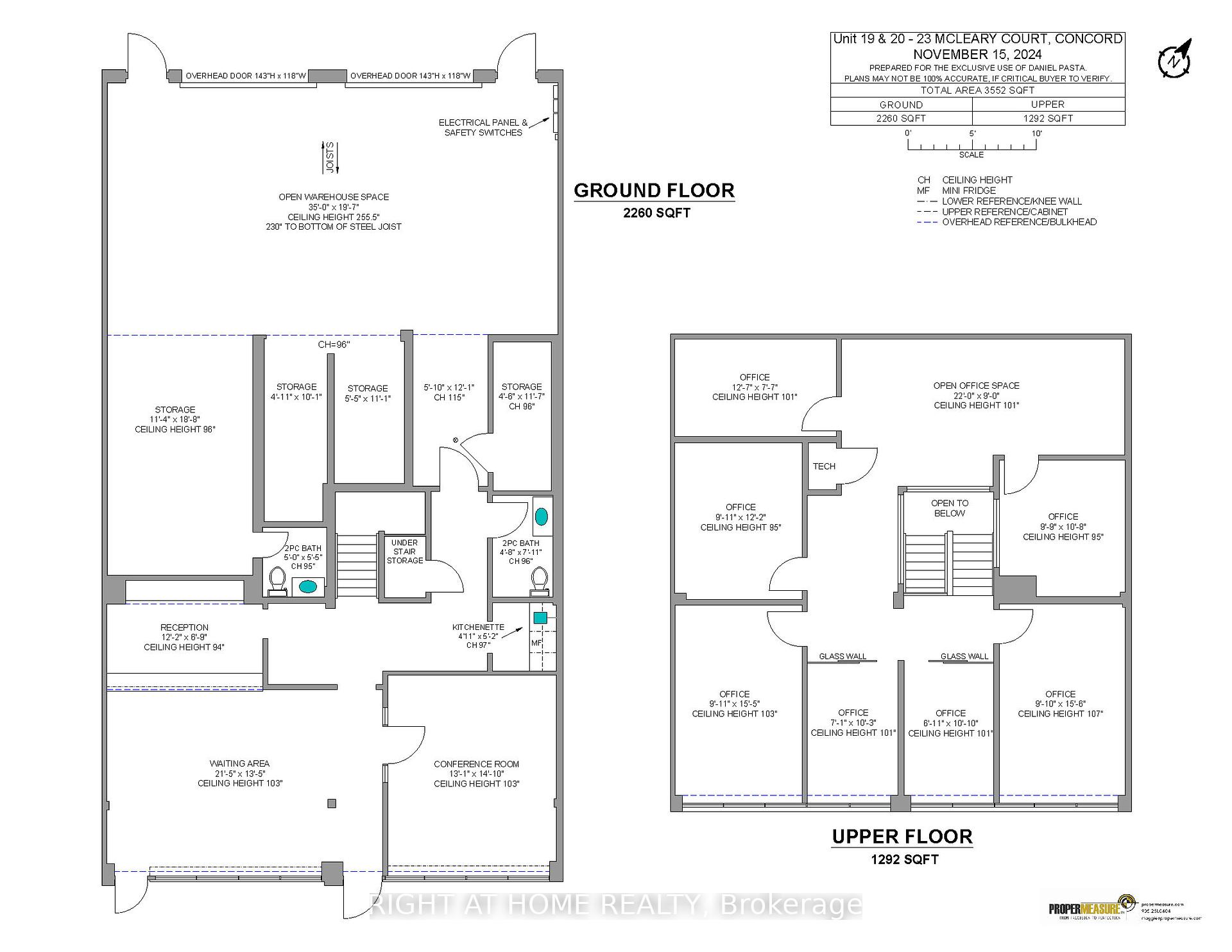
Completely renovated double condo unit with Highway 7 exposure. Ideal for professional office, showroom, and warehousing. Great investment in an area with many new high rise developments. Bright and spacious with lots of windows. 3552 sqft over two levels. Multiple open concept work spaces, glass partitioned offices, and washrooms. Reception area, boardroom and kitchenette. Rooftop HVAC unit for office areas, gas heater for warehouse. 18 feet clear height in warehouse area. 2 large on grade roll up shipping doors. Spacious covered rear shipping area. EM1 zoning, ample power. Parking common and unreserved. Well managed complex. Property will be vacant on closing. Transit on doorstep, short walk to subway, close to Hwy 400 and 407.
Features
-
Category: Warehouse

-
Total Area: 3,552 sqft

- Office Area: 2,344 sqft

- Industry Area: 1,172 sqft

- Parking Types: None

- Vehicle Capacity: 2

Details
- Zoning: Prestige Employment Zone

- Tax: $ 11,145

- Maintenance: $ 1,047

- Alcohol Allowed: N

- Features: Major Highway, Subways

- N12301677

- Listing contracted with: RIGHT AT HOME REALTY






























