Description
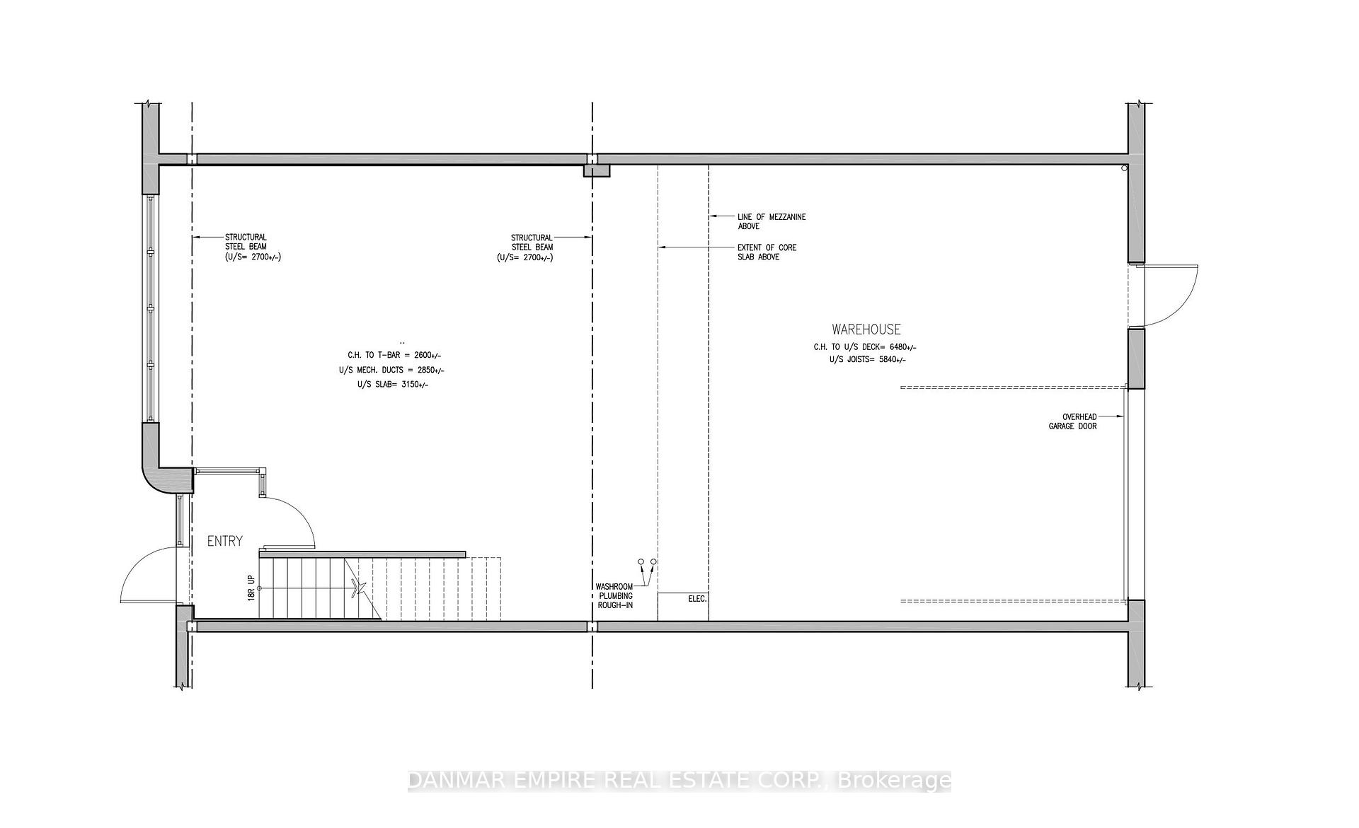
Vacant and move-in ready! This turnkey 2,466 sq ft industrial unit is ideal for owner-users or investors alike. Features include a drive-in door, main floor washroom with shower, bright open layout, and three second-floor offices with a separate entrance - perfect for generating additional income or private workspace. The upper offices can produce approximately $1,800/month in rent, or the full unit can achieve around $4,800/month in total rental revenue. Zoned EM1 (Prestige Employment), allowing a wide range of industrial, manufacturing, warehousing, food preparation, distribution, and office uses (automotive repair not permitted). Excellent for a business seeking its own facility, a hybrid owner-occupied setup, or a long-term investment with strong income potential. Ample front parking and easy access from major Vaughan routes.
Features
-
Category: Factory/Manufacturing

-
Total Area: 2,466 sqft

- Office Area: 855 sqft

- Industry Area: 1,611 sqft

- Parking Types: Outside/Surface

- Bathrooms: 2

- Clear Heights: 18

- Vehicle Capacity: 1

- Grade Level: 1

Details
- Zoning: Prestige Employment Zone

- Tax: $ 5,900

- Maintenance: $ 475

- Alcohol Allowed: N

- N12510586

- Listing contracted with: DANMAR EMPIRE REAL ESTATE CORP.






























