商业物业信息
盈利的餐馆生意带有fully配备的厨房位于在中心北约克, Yonge 和 Finch,步行可达地铁站,环绕带有民宅公寓和房子和其他商业生意,超大外面露台,和车位zones已有前后面,额外的储藏空间在 shipping包含在 back.生意can continue ope评级,和加盟brand usage rights 是 transferable.
商业信息
- 
                                                类别: 餐馆

 - 
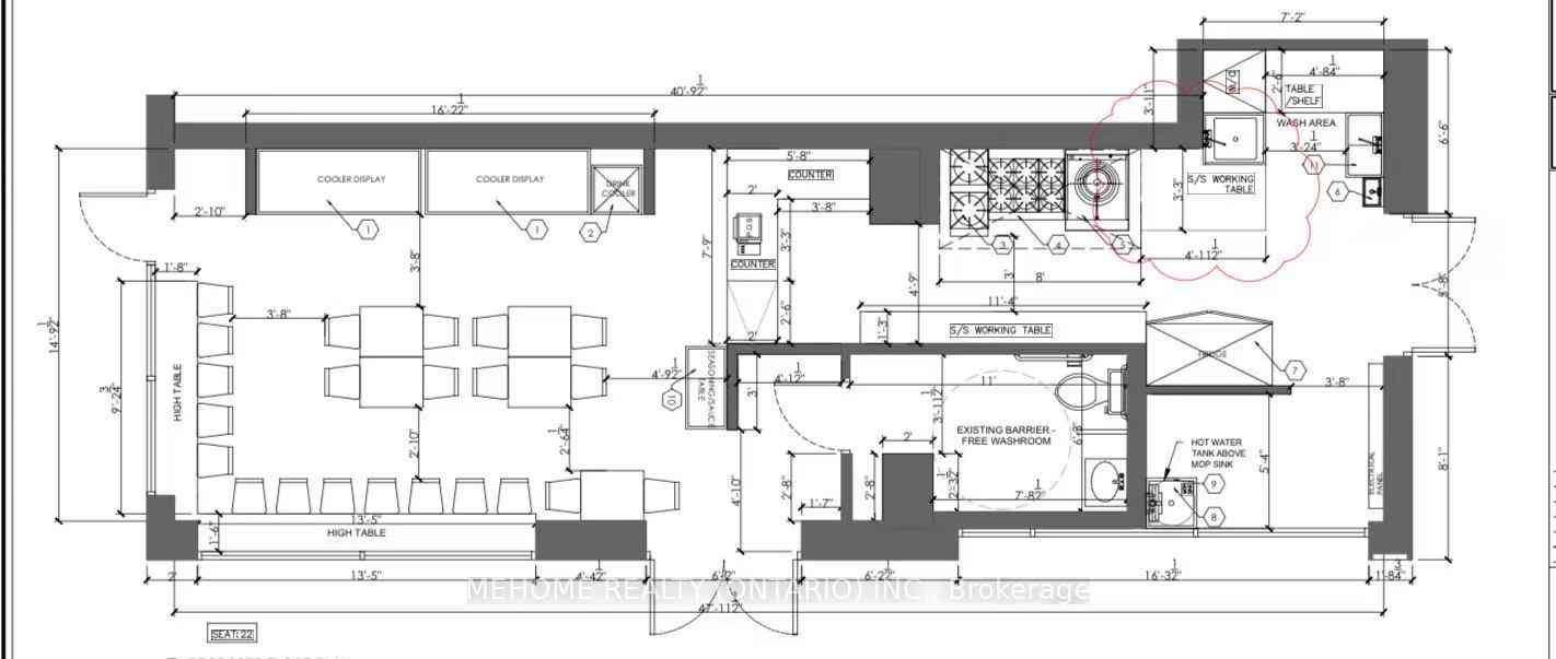
                                                整体空间: 900 平方尺

 - 零售空间: 900 sqft

 - 容纳座位: 18

 - 车位数量: 3

 - 车位类型: None

 - 出售: 生意(不带物业)

 
物业细节
- 商业规划: 商业

 - 营业时间: 11am-10pm

 - 营业天数: Open 7 Days

 - 员工人数: 3


 - 物业特点: Major Highway, Public Transit

 - C12452227

 - Listing contracted with: MEHOME REALTY (ONTARIO) INC.
 














