商业物业信息
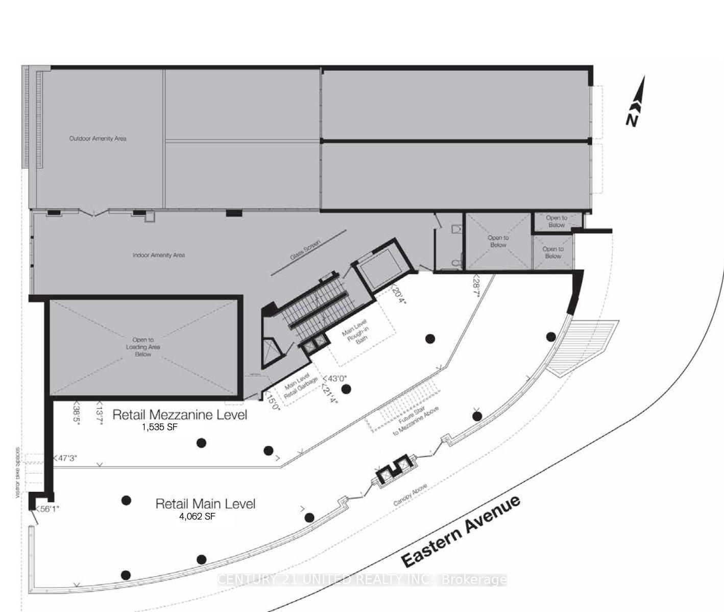
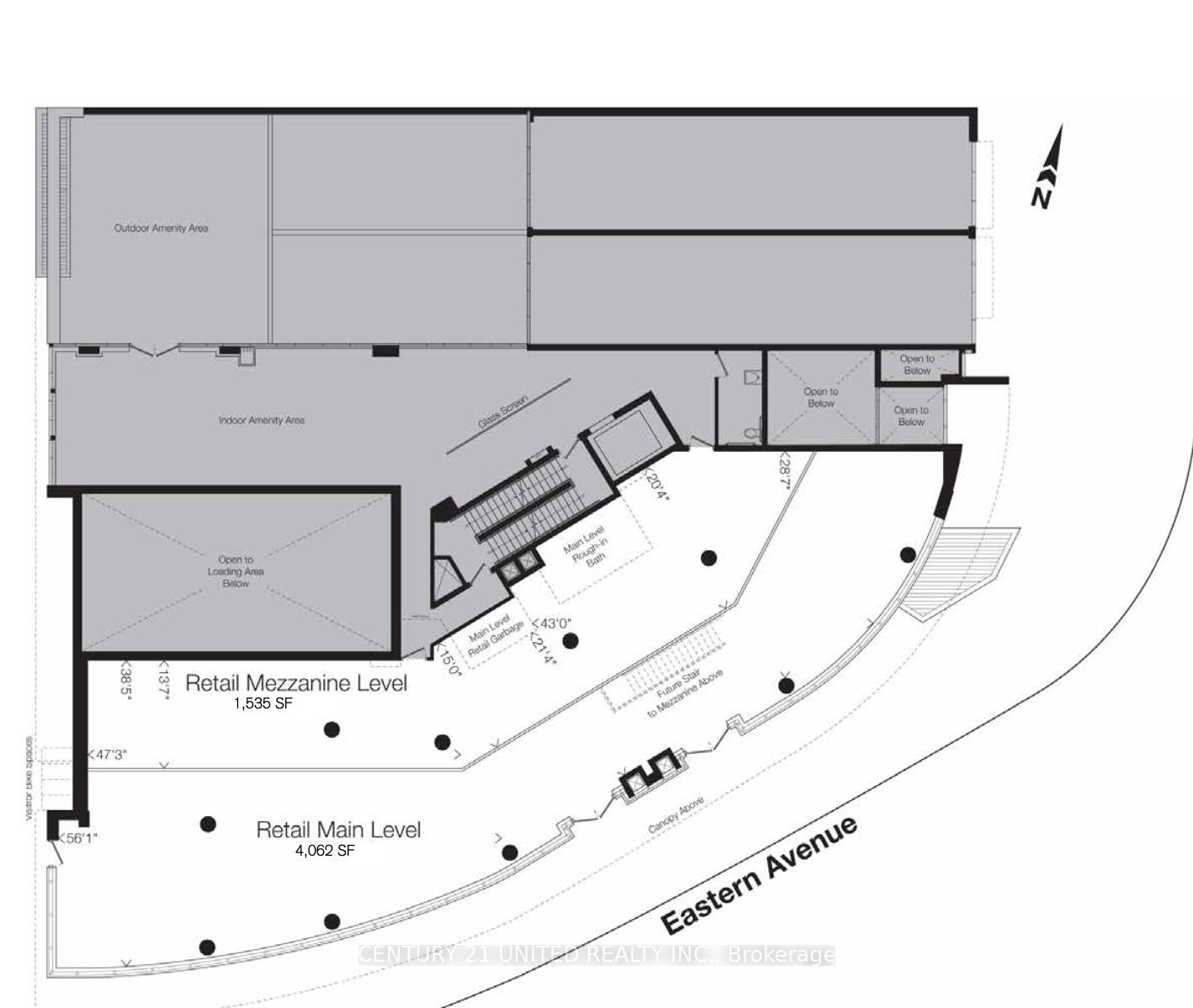
这所97平方英尺的街口商业公寓单元具有出色的角外露面,有50多英尺外露面,包括一个地表停车点。这个单元由一个地上层和一个有20英尺天花板的已完全建成的夹层组成.位于迪斯蒂里区,加那利区和西唐地的生机勃勃地.车站为从金街东站和504路口出行的车站几分钟,方便进出地铁站和加德纳快道.它是Trinity阁楼的一部分,由街道car发展和梦想于2013年完成的八层住宅开发.这个地点对于在多伦多市中心不断演变的地区寻求兴旺发展的企业来说是理想的.分区允许许多允许用途。目前所有者/用户正在移动。空地拥有者将可供使用。卖家也会考虑租房**额外的**客栈费包括P1-03停车位客栈费包括P1-03停车位
商业信息
-
类别: 零售商业

-
整体空间: 5,597 平方尺

- 零售空间: 5,597 sqft

- 车位类型: Covered

- 物业年龄: 6-15
物业细节
- 商业规划: 商业

- 税款: $ 41,186

- C8266440


- Listing contracted with: CENTURY 21 UNITED REALTY INC.






















